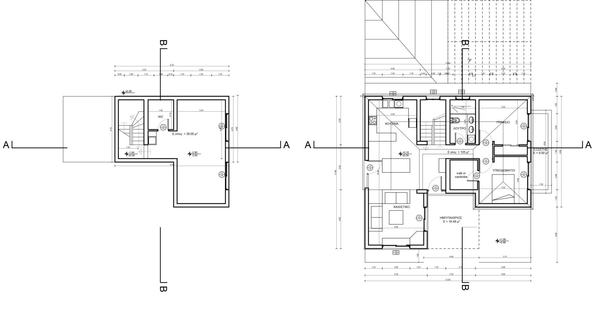
Κατοικία σε αγροτική περιοχή

Η ομάδα Ntizain ανέλαβε τη σχεδίαση και 3d φωτορεαλιστική παρουσίαση μελέτης κατοικίας σε αγροτική περιοχή, λαμβάνοντας υπόψιν το ιδιαίτερο χαρακτηριστικό τις περιοχής ώστε να αποδοθεί το κατάλληλο αποτέλεσμα.